Дом, Речное шоссе Показать на карте
Дзержинск
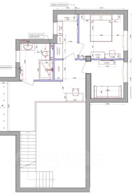
Представляем вашему вниманию уютный двухэтажный дом, расположенный в живописном по адресу Речное шоссе в п. Дачный. Это идеальное место для тех, кто мечтает о собственном доме и готов воплотить свои дизайнерские идеи в жизнь, ведь дом полностью подготовлен к внутренней отделке.Строительство велось с использованием только высококачественных материалов. Толщина стен составляет 43 см, что обеспечивает превосходную тепло- и звукоизоляцию благодаря многослойной конструкции: облицовка, утеплитель и забытовка. Крыша покрыта современной мягкой кровлей. Особое внимание уделено каждой детали: каждая доска потолка обработана в соответствии со строгими стандартами качества.Установлены надежные стеклопакеты BRUSBOX 70 с элегантной антрацитовой ламинацией со стороны улицы. Двухкамерные стеклопакеты толщиной 40 мм оснащены мультифункциональным покрытием и фурнитурой MACO MULTI-MATIC, гарантирующей долговечность и удобство использования.Планировка дома продумана для комфортного проживания: на первом этаже расположены просторная кухня-гостиная, уютная спальня и санузел. Второй этаж предлагает три дополнительные спальни и второй санузел.Участок площадью 637 кв.м. предоставляет достаточно пространства для обустройства зоны отдыха, сада или детской площадки. Коммуникации уже подведены: свет и газ проходят по границе участка, на территории имеется собственная скважина и септик. В ближайшем будущем планируется подключение к центральному водоснабжению.Этот дом прекрасный выбор для круглогодичного проживания, сочетающий умиротворение загородной жизни с удобной близостью к городу.Обеспечение комфортной и безопасной сделки, юридическое сопровождение.Деятельность агентства застрахована.Номер объекта: #1/1706360/11523
145 м2
2 этажа
Кирпич
- Показать контакты
- Добавить в избранное
145 м2
2 этажа
Кирпич
8 300 000
57 241 /м2
