Дом, с. Ивановское, 5 Показать на карте
Ивановское (Краснослободский с/с)
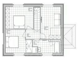
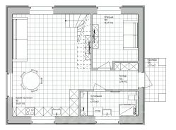
Арт. 132885634 Представляем вам идеальное сочетание природы и современного комфорта — просторный и ухоженный коттедж в живописном сосновом лесу деревни Ивановское, всего в 30 минутах езды от Нижнего Новгорода. Здесь вы сможете насладиться чистым воздухом, тишиной и покоем, оставаясь при этом рядом с городскими благами цивилизации. Природа и экология — ваше главное преимущество: Живописные пейзажи и свежий лесной воздух создают уникальную атмосферу спокойствия и гармонии, обеспечивая идеальный баланс между жизнью на лоне природы и удобным расположением вблизи города. Подробности о доме: - Площадь дома: 100 кв.м., высота потолков — 3 метра. - Просторная гостиная объединена с кухней и обеденной зоной, плюс три комфортные спальни и два полноценных санузла, оборудованная котельная. Современная отделка: -Натяжные потолки, качественный кухонный гарнитур, ванная комната и сан узел с качественной сантехникой, межкомнатные двери, красивые обои и кварцевый виниловое напольное покрытие. -Установлены высококачественные пластиковые окна толщиной профиля 70 мм с ламинацией и утепленная входная дверь с терморазрывом. - Надежный фундамент: сваи и ростверк обеспечивают прочность конструкции. - Мягкая крыша с долговечным покрытием обеспечит надежность защиты от непогоды. - Забор по всему периметру территории, благоустроенные дорожки, обустроено пространство под отдых и купель. Комфорт и технологии: - Интернет по оптическому волокну позволяет наслаждаться высокоскоростной связью. - Теплый пол по всей площади дома дополнен системой отопления с радиаторами, обеспечивающими равномерное распределение тепла. - Система вентиляции заботится о свежести воздуха круглый год. - Электрический кабель мощностью 15 кВт гарантирует стабильное энергоснабжение. - Электричество разведено по всему дому, предусмотрены наружные осветительные приборы, розетки на террасе и фасадное освещение. - Обустроена система водоотведения с помощью септика и скважины, гарантирующая независимость от центральных сетей водоснабжения. Отличный выбор для тех, кто мечтает иметь собственный уголок для отдыха и семейной жизни, наслаждаясь природной красотой и имея всё необходимое для комфортабельного быта. Здесь вы найдете гармонию природы и современный уровень комфорта, позволяющий забыть обо всех городских стрессах и ощутить настоящую свободу и спокойствие. Приглашаем вас познакомиться с вашим будущим домом мечты!
95 м2
1 этаж
- Показать контакты
- Добавить в избранное
95 м2
1 этаж
13 999 999
146 290 /м2
